Human habitation, cities have always sought to stay ahead of reservoirs, rivers, seas as a source of water, as a natural protection from the enemy, as a transport artery, but also as an environmental and aesthetic value. Almost all of these factors (except for the defensive function) remain to this day, added – a more developed tourist and recreational value of coastal waters.

Often this desire becomes selfish – mansions on the banks of water bodies or relentless aspirations of many investors to build up the waters of commercial facilities on floating platforms in the center of Moscow or St. Petersburg. It is necessary to give to this quite objective process (development of coastal territories by means of constructions on artificial, alluvial and floating platforms) modern organized and structural character.

In our stereotypical consciousness does not fit, as you can not live on the Ground and on the water. How much of this alternative type of housing will be convenient for permanent residence? Is this minimal infrastructure enough for a full life?

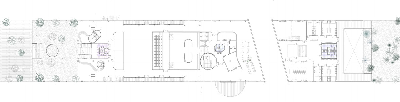
Alluvial area is an attractive place not only because of the opportunity to live within the city, and sometimes in the center, but also the fact that you can live in nature, while having all the necessary infrastructure “at hand”. Water has great resources and opportunities. It primarily provides a variety of transport links and makes it possible to change from car to boat.

The high density of houses in the city streets has inevitably led to the search for more sparse and peaceful places to live. This pilot innovative project is designed to provide an alternative solution to housing problems in large cities.










Leave a comment