The project is based on the desire to give back life and importance to the headquarter building of the Italian Croce Rossa in Verona. This objective is reached firstly enhancing the original function of assistance that characterizes the voluntary-military organization and secondly re-launching the building in a new guise that finds a configuration suitable for current needs. Furthermore, being the building under monumental and historical restriction, the project wants to keep the authenticity of the building and, for this purpose, is characterized by light interventions. The aim of the project is to create a condenser of activities that will become a hub for the city and a way to revive the suburban district. The multiple functions that occupy the building are organized so that different users, belonging to contrasting social classes, don’t come into direct contact; for this reason, the project works by levels and bands. Each activity also presents an area of outdoor pertinence that follows the orderly logic of the internal design through the arrangement of the flooring and of the green, of different types.

The basement floor is dedicated exclusively to the Italian Croce Rossa:
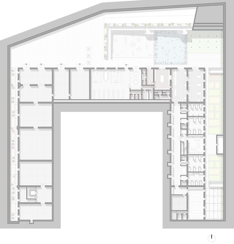
The part of the building towards via Giolfino, on the right, is used as a guesthouse open to needy people offering a canteen, dormitories with collective bathrooms, a common room and a large workshop for manual activities. The rooms overlook an area dedicated to cultivation, with vegetable gardens and orchard; these spaces are an important social and sharing tools.
- The central area of the building is for military use with offices, archive and canteen. Also, militaries have their own outdoor space: a large wooden platform where you can eat in the summer, you can meet in free time and you can organize events related to the sale of handmade artifacts and crops by those who stay in the guesthouse. This area is divided by the guesthouse thanks to thick rushes immersed in a large pool of water.
- The band on the left, towards the building of the Revenue Agency, darker due to the proximity of the wall delimiting the basement space, is destined to deposit for use by both the military (ambulances, materials and field equipment) and the hostel located in the corresponding position of the ground floor (laundry, wardrobes for sheets and wipes). The warehouses lean against an outer strip of rushes that create a natural background for the rooms of the upper hostel.
- The ground floor especially presents functions open to wealthy citizens; however, an area is still under the responsibility of the Croce Rossa:

The area of the building next to via Giolfino, from which it has its only access, is dedicated to the reception center with first aid, the infirmary, a study of a doctor, a study of a psychologist and four counselling offices. There is also a teaching room used for medical-social courses. This strip doesn’t have an outdoor area except for the bridge that go to the road, which overlooks the gardens below. The reception center doesn’t have direct contact with the courtyard; only the windows of the rooms overlook it. This area is connected to the lower floor guesthouse through a staircase and a lift that can be reached from the ground floor waiting room. Every room for medical use has a mezzanine with wardrobes and small armchairs for workers. The counselling offices are particular: they consist of real wooden houses with a heavy curtain that separates the interior from the corridor; in this way is recreated a comfortable space that puts patients at ease.

The band adjacent to the reception center presents cultural spaces: an exhibition hall, an open-air theater dug in the courtyard and a conference room. This area is characterized by one of the two original arched gates that allow the entrance to the courtyard from Via Giolfino.

The part of the building on the left of the previous one offers a bar, a large coworking area and a green wooded area that characterizes the part of the courtyard adjacent to the theater. The bar overlooks railway, thanks to the original windows, while opening towards the courtyard with a wooden platform; this material characterizes the flooring of the whole band. Coworking, on the opposite side of the courtyard from the bar, is on two levels. On the ground floor there is a dining room, individual work spaces and a collective space separated by a bookcase that serves as a support for the staircase leading to the upper mezzanine. Here we find spaces to work individually, a relax area and sofas for reading magazines. The green area of the courtyard serves as a hinge between the two functions: from a leisure space to a work space, passing through an area of ”reflection”; to read and rest in the shade of the large trees, in this area there are particular wave shaped seating that, thanks to the lightness of the material with which they are produced, can be moved freely by the user in order to create benches or deck chairs on as needed. The zone is emphasized by the continuation of some wooden slats of the bar and coworking towards the grass. In this band we find the second entrance portal, speculating with respect to the previous one; in this case the project reopened an entrance that was originally intended for trains with a service rail. We find this character in the particular flooring that proposes an alternation of rough wood and gravel boards, thus recalling the railway.


The last strip in the building is occupied by the hostel and overlooks the garden towards the building of Revenue Agency. The hostel can host forty people, accommodated between bedrooms with private bathrooms and cottages with shared facilities. All the standard bedrooms have a mezzanine that, in addition to increasing the living area and decreasing the great height of the building, allow you to reach a footbridge; this connects all the rooms and, overlooking the common areas of the lower floor, leads to the dining area. From the ground floor of the bedrooms you can reach the mezzanine floor thanks to a vertical staircase, whose structure has been transformed into a wardrobe-bookcase from which movable furniture, such as tables and chairs, can be extracted. The rooms that open onto the courtyard are characterized by a bow window with the particular form of a right-angled triangle: the hypotenuse is an opaque wall that hides the room from the view of visitors; the lower cathetus is glazed, like the original arch that delimits the window above; the triangular base is raised fifty centimeters from the ground and is used as a sofa thanks to three pillows. The rooms that overlook the garden of the building of Revenue Agency have a glazed balcony. In addition to the traditional rooms there is also a camping area that offers a different way of living: inside each house there is only the bed and the bathrooms are shared. These light structures are present both outdoors, arranged on a wooden platform, both inside the building; the first ones are real wooden houses while the second ones consist of a structure in opaque glass and wood. Fundamental in a hostel are the common areas that, in our project, are very present. On the ground floor the rooms are alternate with reading and TV rooms; these activities are not enclosed in real rooms but are protuberances of the corridor, which expands to create larger places of sharing.

The reading rooms are illuminated by a glass door that leads to the hostel’s garden and a skylight; instead, the television zones are darker because they only have a skylight. On the upper floor, the footbridge, in addition to leading to the dining area, becomes a space for relationships thanks to a series of armchairs; furthermore, the mezzanine faces directly onto the common halls below with which there is a visual and auditory contact. The walkway ends with the dining area that develops above the hall, another place of sharing; the mezzanine extends towards the bar thanks to a glass bridge that passes over the entrance doors. In this way two similar activities are related of each other without having a mixture of users. In the spaces of the upper walkway you can access, as well as from the single rooms, also thanks to a lift and a common staircase. The mezzanine in the camping area offers another collective space: furnished with particular beanbag seats, this space is open to both adults and children.

The hostel has also a large outdoor green space, on the side of the building of Revenue Agency. This area is treated as a botanical garden with a path between traditional tree species. The garden is accessed from the common rooms on the ground floor thanks to the footbridges that bypass the area of the rushes. There is also an access directly from via Giolfino, that is used only by those who stay in the hostel and who already have the keys to open the gate. The botanical garden ends with a large wooden platform on which are placed the houses with beds; this space is connected with the internal camping area through a bridge.

























Leave a comment