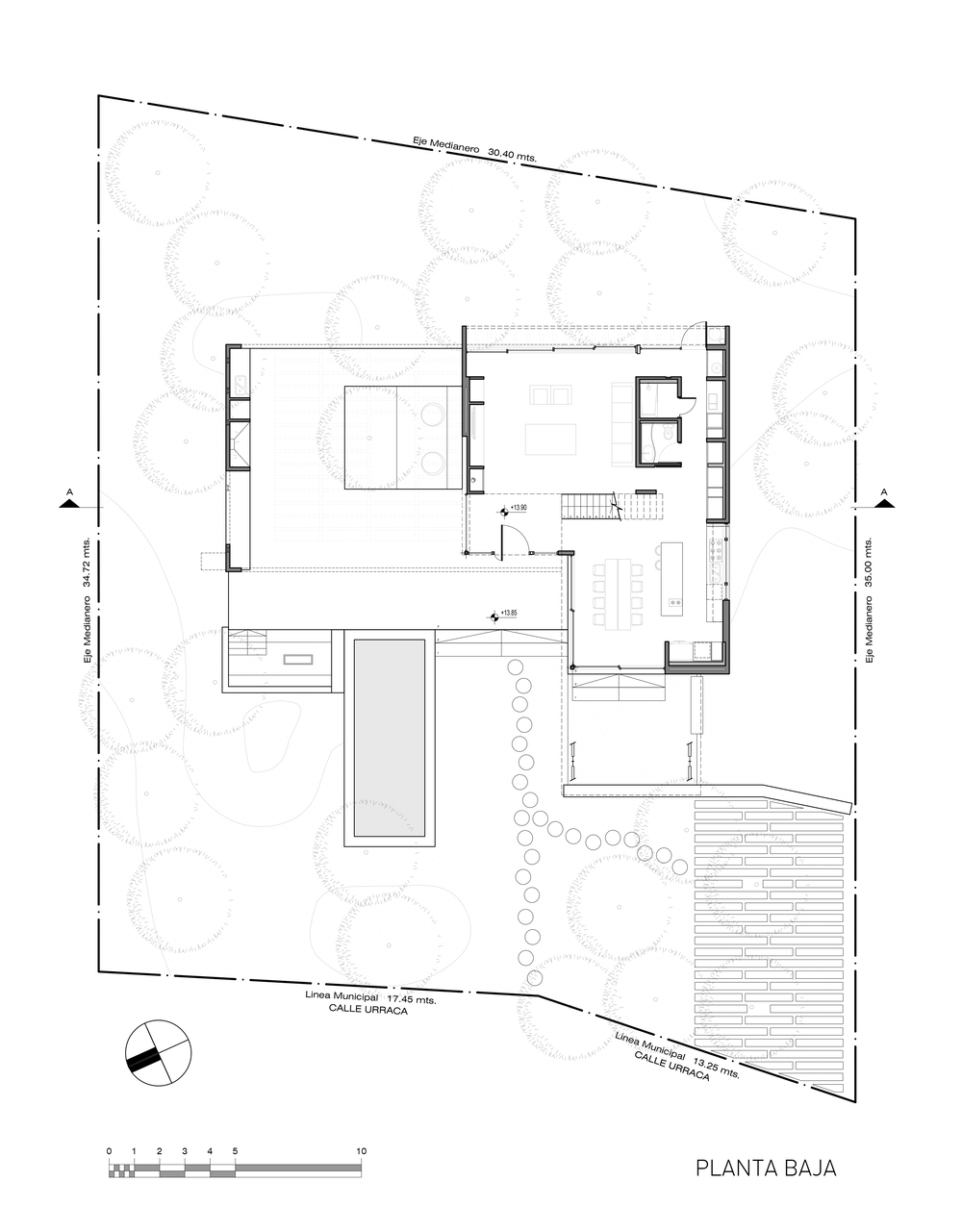
Nestled in the southern extreme of Pinamar County, Kairos House rests on a new small urbanized area consisting of four blocks surrounded by a forest and connected to the city only by a boulevard. Large-sized lots and a restrictive building code secure a balance between human presence and the local flora and fauna.
By the time Kairos was commissioned, the studio had already built some of the residences in the area, such as its neighbouring Jaima House. The recreational spaces exposed to the north and west are the first points of contact between the two homes which havea similar imprint as the same type of materials, contractors, methodology and supplies were used.

The roof mirrors the inclination in that of Jaima, but instead of a coffered slab, a ‘concrete wedge’ made of big triangular walls covers the house.

The barbecue-grill area is supported by slender beams that span across the patio, expanding the apparent size of the house and giving scale to this area that becomes the ‘heart of the house’, ‘the gathering spot’ over other spaces specifically designed for this purpose. Direct sunlight solely showers the patio at noon as the beams create a game of shadows that protect the space during the rest of the day. Here, the existing pine tree was preserved to create a ‘natural island’ at the centre of it: a shaded and cooled by fresh airspace intended for lingering and that also helps cooling the interior of the house with no need of additional forced-air systems.

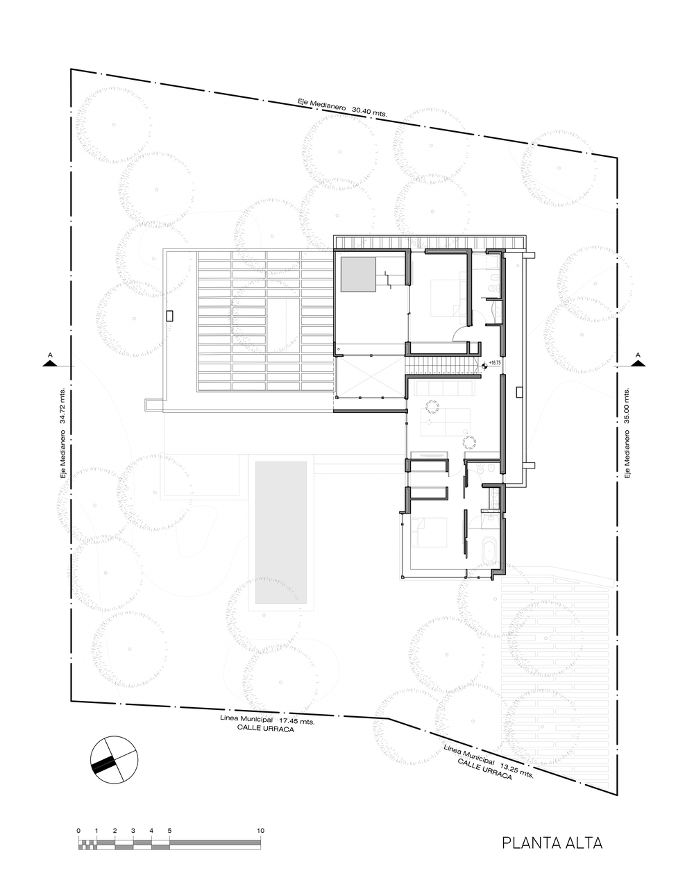
The clear ground floor seems to expand the free space enclosed by the pergolas. On the upper floor, the resting areas expand forward as a lookout, bringing them closer to the nearby forest.

At lot level, the outdoor spaces were designed as a platform holding areas for resting and contemplation pierced by the natural environment. The concrete pergola, with its defined straight lines, produces a changing pattern of shadows and lights throughout the day and the pine tree standing at the centre becomes the sole vertical element of the ensemble.

Kairos House might be conceived as an ‘observation device’: a place to observe the neighbouring architecture and the landscape, while being part of it.

















Leave a comment