The research center for the environment is an architectural and urban piece, surrounded by an allusive creek called Sanchay and an urban plan called “Quitumbe centrality” where the urban green stands out in relation to the buildings. At the urban level it seeks to connect two neighborhoods separated by the existing geographical fault and generating transitional spaces surrounded by vegetation and a free floor plan with public space. Currently, the deterioration of the creek has generated an accumulation of waste which has contaminated the riverbank and affected the soil.


The project seeks a dialogue between tectonic and stereotomic architecture through the use of materials and new construction systems, for this reason it is intended to generate a symbiosis between architecture and nature causing a timelessness allowing to appreciate the beauty and validity of the work, being enveloped by the existing green.

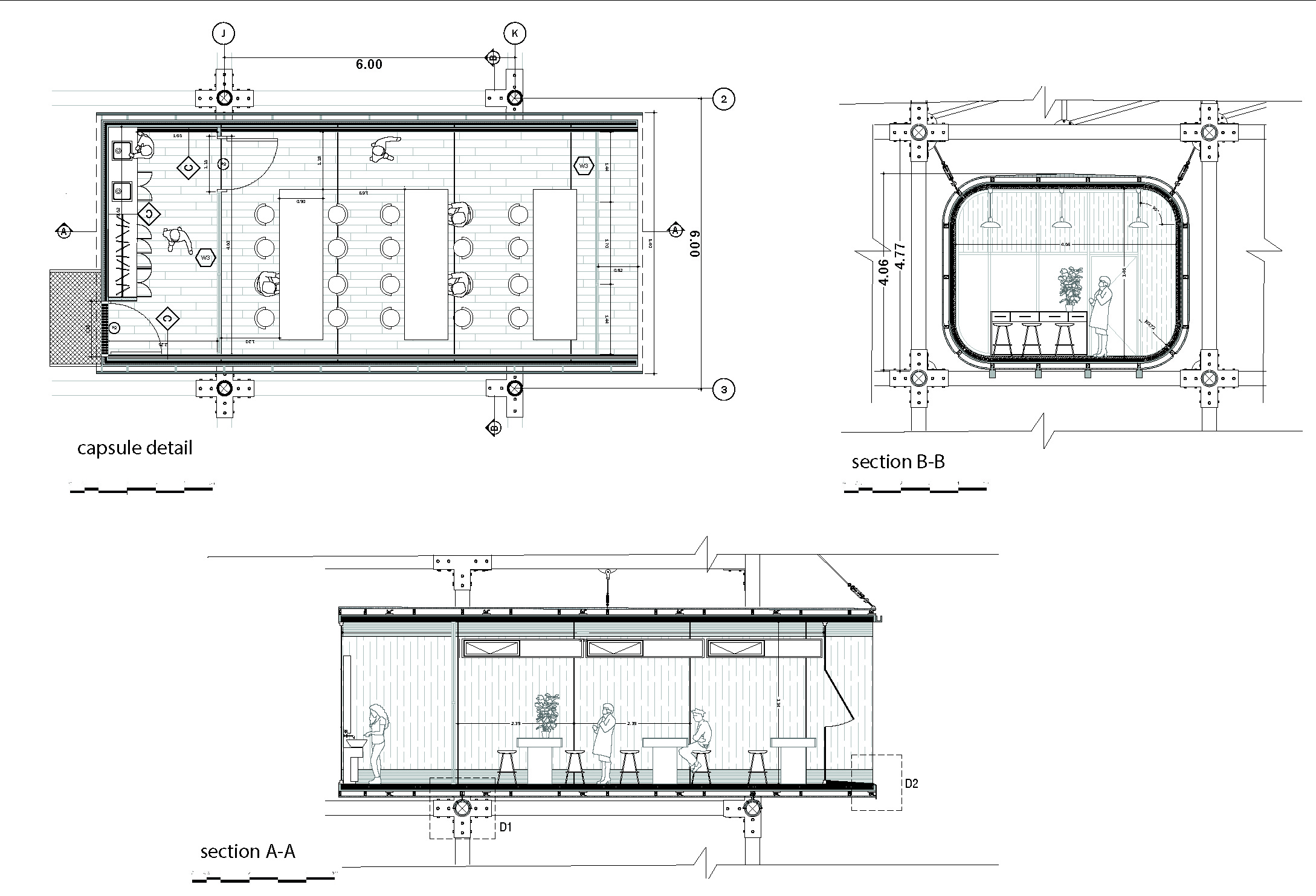
The basis of the project is based on the conscious recovery of the creek, through spaces for research, teaching and reflection of care, on the other hand, consists of spaces for the production of seedlings, for later reforestation of endemic species. Within this approach we seek to be a project that leaves the minimum construction footprint on the ground at the time of being transferred to another site of intervention, fulfilling the same objective in different streams of the city, so we propose a modular design which is adaptable and mutable over time. Easy to assemble and disassemble, for this reason from its conceptualization a light metal structure and dynamic spaces are sought that in its sum can result in different activities wrapped in the same structural mesh, which is built by means of union pieces made to measure and that allow an easy expansion of the project.


The natural regeneration of this type of equipment is projected for 10 years, where all the proposed plant species begin to generate an ecosystemic adaptation, where animal species begin to be part of this project, mainly species of hummingbirds which are endangered, so the recovery of the creek consists of three strips, the first of ferns typical of riversides, the second of flowering shrubs and the third native shrubs, and thus generate an integrated architectural-environmental Project.















Leave a comment